Navigation ein-/ausblenden
Home
Projekte
Gewerbe- und Verwaltungsbau
Schul- und Kommunalbau
Wohnungsbau
Denkmalpflege
Außenanlagen
Leistungsumfang
Referenzen
Büro
Kontakt
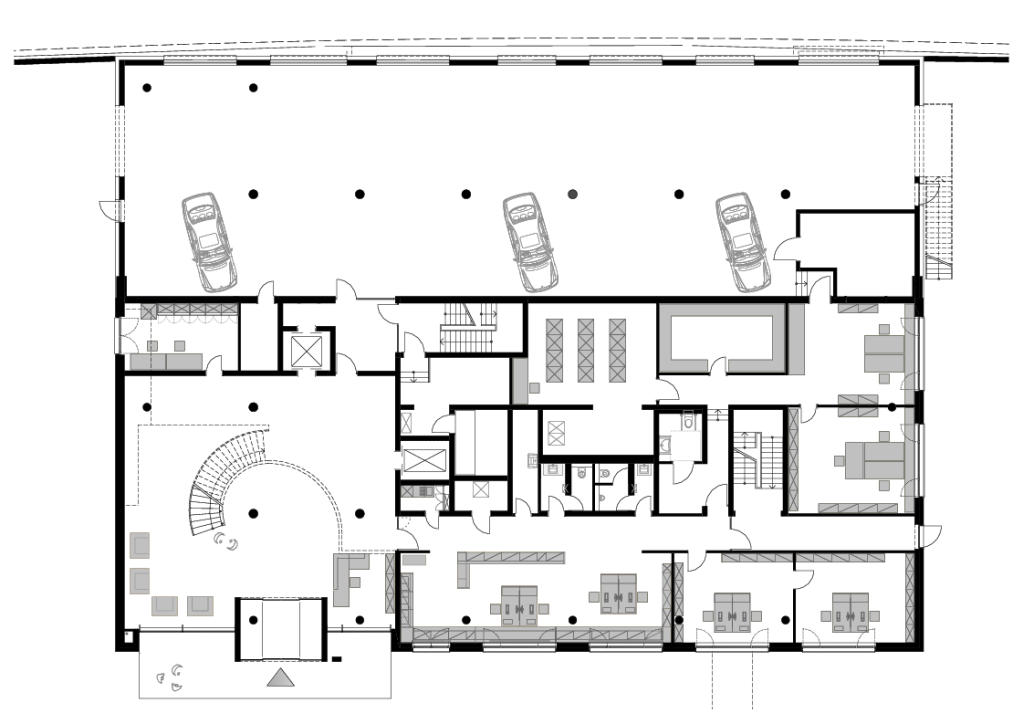
Neubau Verwaltungsgebäude
innen
Informationen:
Neubau eines Verwaltungsgebäudes für ca. 160 Arbeitsplätze
Büroräume nach den Bedürfnissen der Benutzer zugeschnitten
Innenräume offen, lichtdurchflutet, repräsentativ, transparent
Repräsentative Eingangshalle mit skulpturaler Treppe und Empore
Großzügige Cafeteria mit Blick auf das Hafenbecken
Verbindungen zu den älteren Verwaltungsgebäuden über Stege
zur Außenansicht
Übersicht
Laborgebäude
Verwaltungsgebäude außen
Verwaltungsgebäude innen
Halle 3
Halle 4
Gewerbe- und Verwaltungsbau
Handels- und Recyclingunternehmen, Neubau Firmenzentrale Karlsruhe mit Verwaltungsgebäude, Laborgebäude, Lagerhalle und Werkhalle
Errichtung einer Lager- und Umschlagsfläche
Umbau und Sanierung Lichtspieltheater „Casino“
Umbau einer Villa (jetzt Honorarkonsulat)
Neubau eines Recyclingbetriebes für Edelstahl
Neubau eines Verbindungssteges
Neubau einer Messehalle in Hannover
Erweiterung Media Markt Frankfurt, Nordwestzentrum
Impressum
Datenschutzerklärung
Sitemap